CASCOS C5S WAGON Podnośnik 2-kolumnowy śrubowy, udźwig 5.0T
zobacz film
Producent
Numer katalogowy (symbol)
Opis produktu
Elektromechaniczny (śrubowy) podnośnik dwukolumnowy dedykowany do pojazdów dostawczych o masie nie przekraczającej 5 ton. Z symetrycznymi, 3-stopniowymi długimi ramionami zapewnia szeroki zakres obsługiwanych pojazdów (do L5 i kamperów)
PODSTAWOWE ZALETY:
- Trwała i niezawodna konstrukcja kolumn na bazie dwóch solidnych ceowników stalowych
- Trzystopniowe długie symetryczne ramiona - umożliwiają wjazd samochodem z dowolnej strony oraz montaż kolumny głównej po dowolnej stronie, zapewniają bezproblemową obsługę nawet najdłuższych samochdów dostawczych (do L5)
- System blokady ramion umożliwia ich ułożenie do wolnym punkcie (nie skokowo)
- Udźwig 4,0T homologowany dla każdego położenia i rozłożenia ramion
- Najwieksza na rynku średnica śruby nośnej aż 45 mm zapewnia mniejsze zużycie elementów i dokładniejsze ustawienie pozycji wysokości unoszonego pojazdu
- Elektroniczny system synchronizacji unoszenia obu wózków
- W pełni automatyczny innowacyjny elektroniczny system sterowania i informacji o podnośniku ILC z możliwością komunikacji z aplikacją na smartfony
- Wózki na rolkach zamiast tradycyjnych ślizgów zapewniają większą trwałość
- Wyposażony w płyty fundamentowe ułatwiające idealne ustawienie kolumn na posadzce, tacki na narzędzia na ramionach unoszących, metalowe (nie materiałowe) osłony wnętrza kolumn i gumowe ochronniki drzwi oraz adaptery wysokości 100 mm
DANE TECHNICZNE:
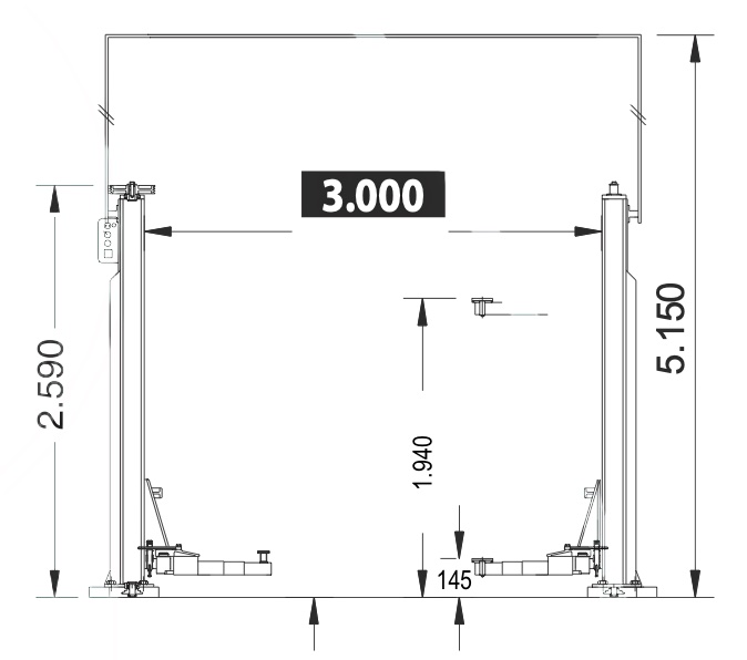
| Udźwig | 5000 kg |
| Wysokość unoszenia | 1940 mm |
| Minimalna wysokość punktów podparcia | 145 mm |
| Wysokość całkowita z pałąkiem | 5150 mm |
| Wysokość kolumn | 2590 mm |
| Odstęp między kolumnami | 3000 mm |
| Zasięg ramion - 3 stopniowe | 855 - 1177 - 1810 mm |
| Silnik | 2 x 3 kW |
| Zasilanie | 400 V (3 fazy, 50Hz) |
| Czas unoszenia | ok. 40 s |
| Ciężar podnośnika | 1250 kg |
| Kod EAN | 5905054601126 |
Elektromechaniczny (śrubowy) podnośnik dwukolumnowy dedykowany do pojazdów dostawczych o masie nie przekraczającej 5 ton. Z symetrycznymi, 3-stopniowymi długimi ramionami zapewnia szeroki zakres obsługiwanych pojazdów (do L5 i kamperów)
Out of stock

